

要糖主说,能住在老破小里需要的不止有梁静茹的勇气,还要有超常人的忍耐力。
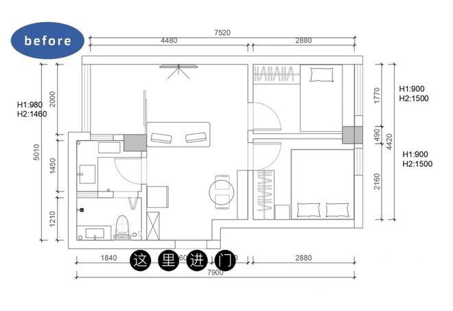
广州老房子给人最可怕感受,就是走进厨房和卫生间的一瞬间。原始卫生间的门开在狭小的厨房里面,暗卫洗漱蹲便和淋浴胡乱挤在一起,敞开对着做饭的位置。原始布局平面处处写满了人生的不如意。
面对奇葩户型、难利用的空间以及昏暗不明的环境,不少人想改但却无从下手,想找设计师却发现称心的也难找,老屋改造真是件头疼事!
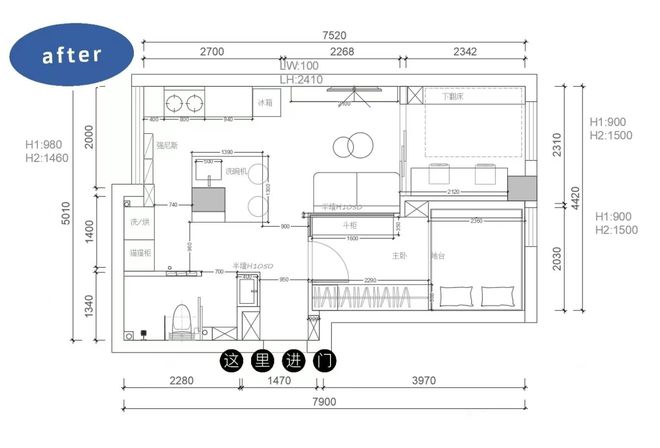
但是!本期一兜糖认证设计师@jin阿瑾将36平老破小完美打造,看她如何实现超强空间扩容术!
设计师相关的问题
快来找推荐官!
房屋信息
户型: 两居室
面积:36 ㎡
房屋位置 :广州
预算:17w












更多靠谱的设计师
推荐官帮你找
好了,看完今天的案例,可不少朋友们想要联系设计师了~
趁热打铁,糖主这就隆重介绍咱们一兜糖的设计师推荐官!
设计师相关的问题
快来找推荐官!
可以根据你家所在地区、装修需求、整体预算,1对1为你精准匹配最适合你的设计师。
当然,匹配的前提是设计师能力在线,资质靠谱,服务到位。
总之,设计师相关的问题,都可以找推荐官!等你来哦~
抄作业!收纳大户的柜子,1㎡能当5㎡用(附尺寸)
28㎡小家住4口人,不拥挤还显敞亮!这招偷面积开挂了
手把手教你柜子收纳,让家实用又显大

2023-02-20

2022-12-26

2023-08-19

2023-01-26

全球票房电影排名前100位最新排行榜(影史排名前100是什么?)
2023-03-11

2023-03-10

2023-01-01

2023-02-17